物件詳細
物件名
ハイマート辻堂
所在地神奈川県茅ヶ崎市赤松町
価格3,980万円
交通JR東海道本線 「辻堂駅」 徒歩10分
物件種別中古マンション
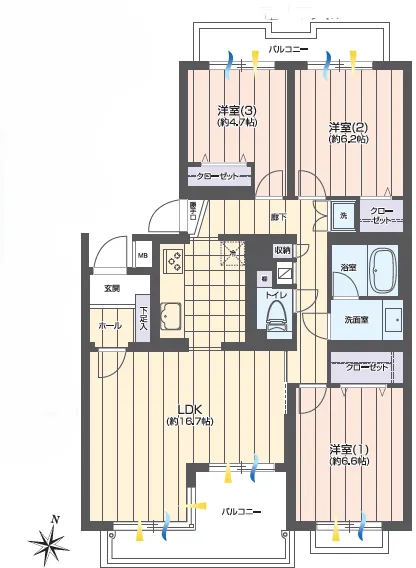
間取り3LDK
階数4階建
所在階3階
専有面積 81.08m2 (24.53坪)
駐車場空無
構造鉄筋コンクリート
現況空家
修繕積立金12,120円/月
管理費9,900円/月
管理方式全部委託
土地権利所有権
引き渡し時期即時
取引態様仲介
築年月1984年12月
学区小和田小学校
赤羽根中学校
赤羽根中学校
情報更新日2026年2月12日
備考組合運営費:月額200円
自治会費:月額100円
事務所使用:不可
フラット35適合物件、長期修繕計画書有
バイク置場:月額6.000円
駐輪場:月額125円
自治会費:月額100円
事務所使用:不可
フラット35適合物件、長期修繕計画書有
バイク置場:月額6.000円
駐輪場:月額125円
設備・条件
キッチン食器洗浄機
バス・トイレ浴室乾燥機
室内設備
建物設備駐輪場 / バイク置き場 / 日当たり良好
セキュリティ
入居条件ペット可
その他スーパー徒歩10分以内 / 総合病院徒歩10分以内 / 小学校徒歩10分以内
こだわり条件
ペット飼育可能
浴室乾燥機
リフォーム済
人気の「辻堂駅」まで徒歩10分!大型ショッピングモールや総合病院など周辺施設も充実で住環境良好☆2面バルコニー付で通風・開放感◎
0120-58-6621
※電話でお問い合わせの際は、「物件番号: 10043279」をお伝えください。









