物件詳細
物件名
パークグランディ湘南辻堂
所在地神奈川県藤沢市辻堂新町1丁目
価格6,780万円
交通JR東海道本線 「辻堂駅」 徒歩4分
物件種別中古マンション
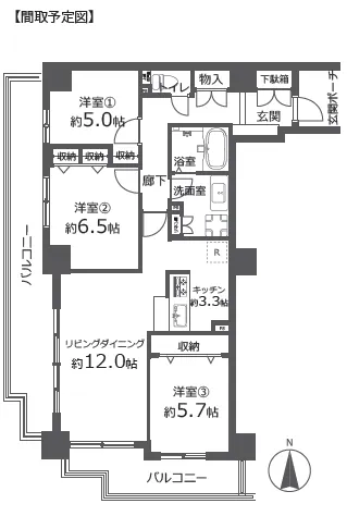
間取り3LDK
階数12階建
所在階7階
専有面積 77.71m2 (23.51坪)
駐車場空有
構造鉄筋コンクリート
現況空家
修繕積立金21,758円/月
管理費17,100円/月
管理方式全部委託
土地権利所有権
引き渡し時期期日指定 2026年4月下旬
取引態様仲介
築年月2012年9月
学区八松小学校
明治中学校
明治中学校
情報更新日2026年3月5日
備考駐車場:月額9.000~16.000円(空有)
駐輪場:年額3.600円(空有)
バイク置場:月額6.000円(空無)
ペット飼育:可(1住戸につき犬猫2匹、その他小動物・小鳥・魚はこの限りではない)
駐輪場:年額3.600円(空有)
バイク置場:月額6.000円(空無)
ペット飼育:可(1住戸につき犬猫2匹、その他小動物・小鳥・魚はこの限りではない)
設備・条件
キッチン
バス・トイレ
室内設備
建物設備駐輪場 / バイク置き場 / エレベーター / 宅配ボックス / 日当たり良好
セキュリティオートロック
入居条件ペット可
その他角部屋 / スーパー徒歩10分以内 / 総合病院徒歩10分以内 / 小学校徒歩10分以内
こだわり条件
眺望良好
対面キッチン
ペット飼育可能
オートロック
リフォーム済
高層階
人気の「辻堂駅」徒歩4分!大型商業施設も近く毎日のお買い物にも便利な立地◎南西角住戸7階部分で開放的な2面バルコニー♪晴れた日には江ノ島・富士山を遠望できます☆
0120-58-6621
※電話でお問い合わせの際は、「物件番号: 10044820」をお伝えください。










