田村の土地購入情報

田村 エリアを変更 土地 条件を変更
該当件数2
並び替え :
おすすめ順
新着順
価格の安い順
価格の高い順
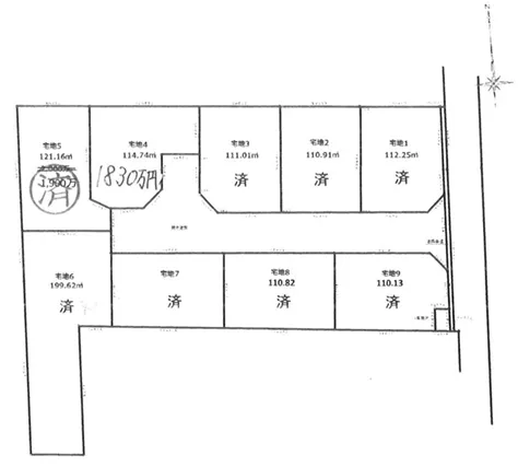
平塚市 田村1丁目土地
スーパーまで70m!毎日の買い物がストレスフリーな立地◎バス停まで徒歩3分で通勤・通学も快適♪お好きなハウスメーカーで建築可能な建築条件なしの土地です☆【No.4】
1,830
平塚市 田村5丁目土地
遠くに富士山を望むロケーション(天候による)二方向から光と風が入る角地♪スーパー・小学校が近く、毎日のお買い物もお子様の通学も安心◎【B区画】
1,780