
厚木市 下荻野新築戸建
小さなお子様がいても目が届く対面キッチン!各居室収納付きでお部屋スッキリ◎家族が自然と顔を合わせるリビングイン階段を採用♪<2号棟>
3,080

厚木市 棚沢新築戸建
陽当り良好な南道路のお住まい!敷地面積はゆとりの47坪でカースペース2台可♪20帖の広々リビング、対面キッチンでご家族とのコミュニケーションも◎
3,480

厚木市 関口新築戸建
リビング奥に小さなお子様とのお昼寝や遊び場としても便利な和室がございます♪2階のお部屋全て6帖以上のゆとりあるお住まい☆
2,880

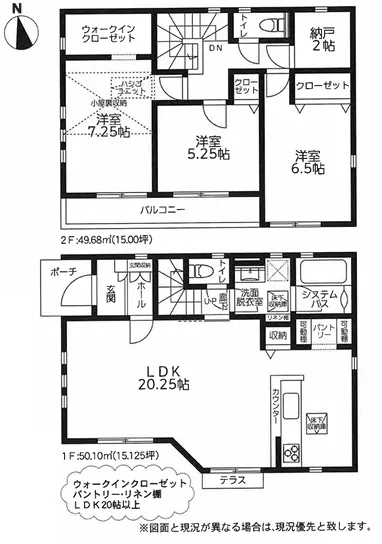
厚木市 棚沢新築戸建
リビングの様子を見ながらお料理が出来る対面キッチン!ひろびろ南面バルコニーが広く洗濯物や布団乾しに便利です♪WIC・パントリー付き☆
2,680

厚木市 下荻野新築戸建
ご家族との会話も弾むカウンター式の対面キッチン♪2階のお部屋は全て6帖以上のゆとりあるお住まい◎便利なカースペース2台(車種による)付き!<1号棟>
2,880