物件詳細
物件名
藤沢市石川2丁目 新築分譲住宅 全1棟
所在地神奈川県藤沢市石川2丁目
価格5,390万円
交通小田急江ノ島線 「湘南台駅」 バス15分 「石川橋」 停歩3分
横浜市営地下鉄ブルーライン 「湘南台駅」 バス15分 「石川橋」
JR東海道本線 「藤沢駅」 バス28分 「石川橋」 停歩3分
江ノ島電鉄 「藤沢駅」 バス28分 「石川橋」 停歩3分
横浜市営地下鉄ブルーライン 「湘南台駅」 バス15分 「石川橋」
JR東海道本線 「藤沢駅」 バス28分 「石川橋」 停歩3分
江ノ島電鉄 「藤沢駅」 バス28分 「石川橋」 停歩3分
物件種別新築戸建
階数2階建
建物面積 121.30m2 (36.69坪)
駐車場有
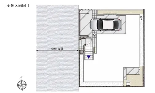
土地面積 100.23m2 (30.32坪)
現況完成済
設備 /
ライフライン公営水道 / 本下水 / 都市ガス
ライフライン公営水道 / 本下水 / 都市ガス
建蔽率60%
容積率200%
土地権利所有権
引き渡し時期期日指定 2025年7月下旬
取引態様仲介
接道状況西6.0m公道
都市計画市街化区域
用途地域第一種住居地域
築年月2025年7月
地目宅地
建物確認番号第R06SHC121611号
学区天神小学校
六会中学校
六会中学校
情報更新日2026年2月7日
備考準防火地域 建物面積:1階車庫面積約13.66平米含
設備・条件
キッチンカウンターキッチン / 食器洗浄機
バス・トイレ浴室乾燥機
室内設備床暖房 / ウォークインクローゼット / シューズインクローク / リビング階段
建物設備日当たり良好 / 南面バルコニー
その他整形地 / 閑静な住宅街 / スーパー徒歩10分以内
こだわり条件
対面キッチン
床暖房
浴室乾燥機
◇充実の標準設備と仕様で未来へ続く安心と快適を◇浴室テレビやミストサウナでゆったりバスタイムを贅沢に♪屋上はテラス付きです!
0120-58-6621
※電話でお問い合わせの際は、「物件番号: 10024599」をお伝えください。










