物件詳細
物件名
藤沢市大庭4期 新築分譲住宅 全1棟
所在地神奈川県藤沢市大庭
価格5,899万円
交通小田急江ノ島線 「善行駅」 徒歩15分
物件種別新築戸建
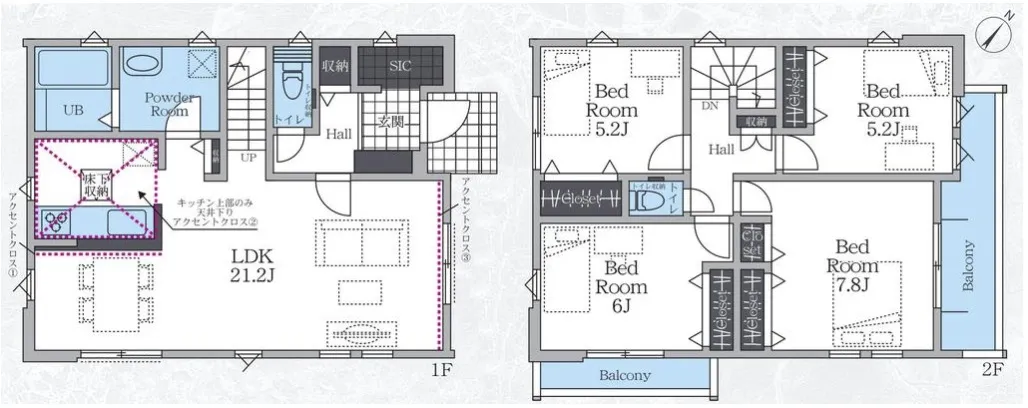
間取り4LDK
階数2階建
建物面積 107.65m2 (32.56坪)
駐車場有
土地面積 166.39m2 (50.33坪)
構造木造
現況未完成
設備 /
ライフライン公営水道 / 本下水 / 都市ガス
ライフライン公営水道 / 本下水 / 都市ガス
建蔽率60%
容積率180.4%
土地権利所有権
引き渡し時期相談
取引態様仲介
接道状況北東4.51m公道に6.12m面す
西4.17m公道に2.02m面す
西4.17m公道に2.02m面す
都市計画市街化区域
用途地域第一種中高層住居専用地域
築年月2026年3月
地目宅地
建物確認番号第25UDI1W建06808号
学区大越小学校
善行中学校
善行中学校
情報更新日2026年1月8日
備考地目:一部公衆用道路 下水道処理区域 宅地造成等工事規制区域 準防火地域
容積率:前面道路幅員制限 土地面積:路地状部分約21平米含
容積率:前面道路幅員制限 土地面積:路地状部分約21平米含
設備・条件
キッチンカウンターキッチン / 食器洗浄機
バス・トイレ浴室乾燥機
室内設備シューズインクローク / リビング階段
建物設備日当たり良好 / 南面バルコニー
その他閑静な住宅街 / 周辺交通量少なめ / スーパー徒歩10分以内 / 小学校徒歩10分以内
こだわり条件
駐車2台以上
対面キッチン
浴室乾燥機
家族の絆が深まるリビングイン階段♪SIC付きで玄関スッキリ☆小・中学校が近く、スーパー・コンビニ徒歩5分と暮らしやすい住環境!
0120-58-6621
※電話でお問い合わせの際は、「物件番号: 10034629」をお伝えください。









