物件詳細
物件名
茅ヶ崎市浜竹3丁目 新築一戸建て
所在地神奈川県茅ヶ崎市浜竹3丁目
価格11,990万円
交通JR東海道本線 「辻堂駅」 徒歩3分
物件種別新築戸建
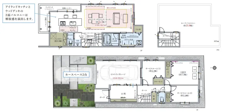
間取り1LDK+2S
階数2階建
建物面積 133.93m2 (40.51坪)
駐車場有
土地面積 132.53m2 (40.09坪)
構造木造
現況未完成
設備 /
ライフライン公営水道 / 本下水 / 都市ガス
ライフライン公営水道 / 本下水 / 都市ガス
建蔽率60%
容積率150%
土地権利所有権
引き渡し時期相談
取引態様仲介
接道状況北4m
都市計画市街化区域
用途地域第一種低層住居専用地域
築年月2026年4月
地目宅地
建物確認番号第2025年SBC-確00974Y号
学区松浪小学校
松浪中学校
松浪中学校
情報更新日2026年2月12日
設備・条件
キッチンカウンターキッチン / 食器洗浄機
バス・トイレ浴室乾燥機
室内設備床暖房 / パントリー / リビング階段 / 吹抜け / 納戸
建物設備ウッドデッキ
その他整形地 / 閑静な住宅街 / スーパー徒歩10分以内 / 総合病院徒歩10分以内
こだわり条件
駐車2台以上
対面キッチン
床暖房
パントリー付き
浴室乾燥機
水栓、コンセント付きの約21.8帖の広々ルーフバルコニー付き。BBQやプールなど楽しめるプライベート空間です♪東海道本線「辻堂」駅徒歩3分の好立地!シャッター付きのガレージ完備☆
0120-58-6621
※電話でお問い合わせの際は、「物件番号: 10043444」をお伝えください。



