物件詳細
物件名
茅ヶ崎市香川5丁目 新築分譲住宅 全11棟 3号棟
所在地神奈川県茅ヶ崎市香川5丁目
価格3,780万円
交通JR相模線 「香川駅」 徒歩5分
物件種別新築戸建
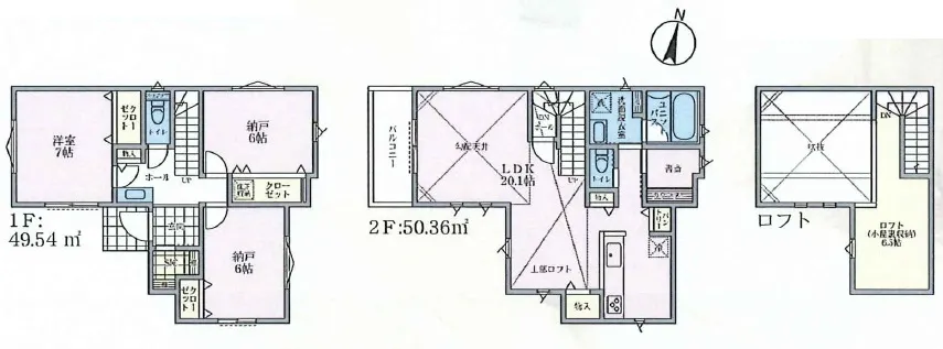
間取り1LDK+2S
階数2階建
建物面積 99.90m2 (30.22坪)
駐車場有
土地面積 102.73m2 (31.08坪)
構造木造
現況完成済
設備 /
ライフライン公営水道 / 本下水 / 都市ガス
ライフライン公営水道 / 本下水 / 都市ガス
建蔽率60%
容積率180%
土地権利所有権
取引態様仲介
接道状況西4.5mに7.740m面す
都市計画市街化区域
用途地域第一種中高層住居専用地域
築年月2026年1月
地目宅地
学区香川小学校
北陽中学校
北陽中学校
情報更新日2026年3月5日
備考準防火地域、第二種高度地区、宅地造成等工事規制区域(5.6.7.11号棟)
※ゴミ置場持分各1/12私道持分有
※ゴミ置場持分各1/12私道持分有
設備・条件
キッチン食器洗浄機
バス・トイレ浴室乾燥機
室内設備シューズインクローク / パントリー / リビング階段
建物設備
その他平坦地 / 閑静な住宅街 / 周辺交通量少なめ
こだわり条件
対面キッチン
パントリー付き
ロフト
浴室乾燥機
JR相模線「香川」駅徒歩5分の駅近分譲地☆新築分譲住宅10棟と売地1区画の開発現場です。小出川の自然を感じながら、便利な暮らしを実現できる住環境♪<3号棟>
0120-58-6621
※電話でお問い合わせの際は、「物件番号: 10045182」をお伝えください。



