物件詳細
物件名
茅ヶ崎市浜竹3丁目 新築分譲住宅 全4棟 4号棟
所在地神奈川県茅ヶ崎市浜竹3丁目
価格7,980万円
交通JR東海道本線 「辻堂駅」 徒歩9分
物件種別新築戸建
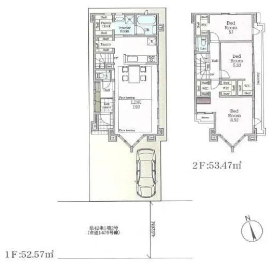
間取り3LDK
階数2階建
建物面積 106.04m2 (32.08坪)
駐車場有
土地面積 100.10m2 (30.28坪)
構造木造
現況完成済
設備 /
ライフライン公営水道 / 本下水 / 都市ガス
ライフライン公営水道 / 本下水 / 都市ガス
建蔽率60%
容積率150%
土地権利所有権
引き渡し時期相談
取引態様仲介
接道状況南4.62m公道に5.916m面す
都市計画市街化区域
用途地域第一種低層住居専用地域
築年月2025年12月
地目宅地
建物確認番号第KBI-SGM25-10-0770号
学区松浪小学校
松浪中学校
松浪中学校
情報更新日2026年3月5日
備考準防火地域、下水道処理区域、最低敷地面積100㎡、最高高さ10m
設備・条件
キッチンカウンターキッチン
バス・トイレ浴室乾燥機
室内設備床暖房 / ウォークインクローゼット / パントリー
建物設備日当たり良好
その他整形地 / 閑静な住宅街
こだわり条件
対面キッチン
床暖房
パントリー付き
浴室乾燥機
南側道路につき日当たり良好!LDKは19帖ございますので、ゆったりとお過ごしいただけます。2部屋から利用できる幅広バルコニー、洗濯物もたくさん干せます☆ <4号棟>
0120-58-6621
※電話でお問い合わせの際は、「物件番号: 10045309」をお伝えください。



