物件詳細
物件名
綾瀬市深谷中2丁目 新築分譲住宅 販売8棟 No.16
所在地神奈川県綾瀬市深谷中2丁目
価格4,480万円
交通JR相模線 「さがみ野駅」 バス21分 「大法寺」 停歩9分
小田急小田原線 「海老名駅」 バス30分 「ハンディホームセンター前」 停歩5分
小田急江ノ島線 「長後駅」 バス12分 「大法寺」 停歩9分
相鉄本線 「海老名駅」 バス30分 「ハンディホームセンター前」 停歩5分
小田急小田原線 「海老名駅」 バス30分 「ハンディホームセンター前」 停歩5分
小田急江ノ島線 「長後駅」 バス12分 「大法寺」 停歩9分
相鉄本線 「海老名駅」 バス30分 「ハンディホームセンター前」 停歩5分
物件種別新築戸建
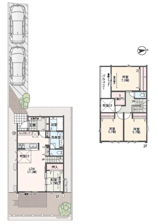
間取り4LDK+S
階数2階建
建物面積 102.26m2 (30.93坪)
駐車場有
土地面積 151.41m2 (45.80坪)
構造木造
現況完成済
設備 /
ライフライン公営水道 / 本下水 / 都市ガス
ライフライン公営水道 / 本下水 / 都市ガス
建蔽率60%
容積率200%
土地権利所有権
引き渡し時期即時
取引態様仲介
接道状況東6.0m公道に8.2m面す
西10.0m公道に2.5m面す
西10.0m公道に2.5m面す
都市計画市街化区域
用途地域第一種中高層住居専用地域
築年月2025年5月
地目宅地
建物確認番号第KBI-SGM24-10-5078号
学区綾瀬小学校
綾瀬中学校
綾瀬中学校
情報更新日2025年12月5日
備考景観法 準防火地域 深谷中央地区地区計画 特定都市河川浸水被害対策法
文化財保護法 航空法 宅地造成及び特定盛土等規制法
文化財保護法 航空法 宅地造成及び特定盛土等規制法
設備・条件
キッチンカウンターキッチン
バス・トイレ浴室乾燥機
室内設備パントリー / リビング階段 / 吹抜け / 納戸
建物設備日当たり良好 / ウッドデッキ / 南面バルコニー
その他長期優良住宅認定通知書 / 閑静な住宅街 / 周辺交通量少なめ / スーパー徒歩10分以内 / 総合病院徒歩10分以内
こだわり条件
駐車2台以上
対面キッチン
パントリー付き
浴室乾燥機
◇全32区画の大型分譲地◇家族の絆が深まるリビングイン階段♪リビング横の和室はお子様のお昼寝スペースにも便利!室内干し2箇所付き☆<No.16>
0120-046-234
※電話でお問い合わせの際は、「物件番号: 10033866」をお伝えください。



































