物件詳細
物件名
厚木市上落合 新築分譲住宅 全3棟 1号棟
所在地神奈川県厚木市上落合
価格3,490万円
交通小田急小田原線 「愛甲石田駅」 徒歩17分
物件種別新築戸建
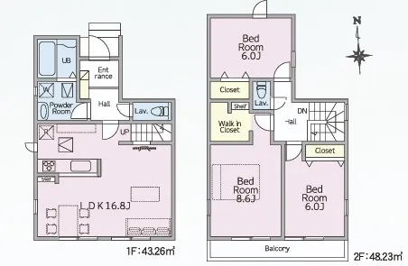
間取り3LDK
階数2階建
建物面積 91.49m2 (27.68坪)
駐車場有
土地面積 105.01m2 (31.77坪)
構造木造
現況未完成
設備 /
ライフライン公営水道 / 本下水 / LPG(個別)
ライフライン公営水道 / 本下水 / LPG(個別)
建蔽率60%
容積率200%
土地権利所有権
引き渡し時期期日指定 2026年1月中旬
取引態様仲介
接道状況北5.0m公道に7.3m面す
都市計画市街化区域
用途地域第一種中高層住居専用地域
築年月2026年1月
地目宅地
建物確認番号第KS125-3120-51205号
学区戸田小学校
相川中学校
相川中学校
情報更新日2026年2月12日
備考宅地造成工事規制区域 盛土規制法 準防火地域
設備・条件
キッチンカウンターキッチン / 食器洗浄機
バス・トイレ浴室乾燥機
室内設備ウォークインクローゼット / リビング階段
建物設備日当たり良好 / 南面バルコニー
その他整形地 / 長期優良住宅認定通知書 / 閑静な住宅街 / 周辺交通量少なめ
こだわり条件
駐車2台以上
対面キッチン
浴室乾燥機
「愛甲石田」駅徒歩圏に駐車スペースを2台確保した3LDK!ご家族とコミュニケーションが取りやすいリビング階段♪WIC付きでお部屋スッキリ☆<1号棟>
0120-046-234
※電話でお問い合わせの際は、「物件番号: 10042251」をお伝えください。






