
藤沢市 辻堂 太平台1丁目新築戸建
◇日当たり・開放感良好な南東角地◇カースペース2台可能(車種による)◇たっぷり収納◇ <1号棟>
5,080

藤沢市 長後新築戸建
最寄り駅まで徒歩6分!通勤・通学に便利な駅近物件♪SIC&パントリー付きで収納豊富☆3部屋に面したバルコニーで洗濯物がしっかり干せます!
4,940

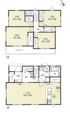
平塚市 大島新築戸建
家族がのびのび過ごせる50坪超敷地♪全居室収納+SIC・パントリー・廊下収納など生活動線に沿った多彩な収納◎長期優良住宅認定物件です♪【3号棟】
3,080
平塚市 河内新築戸建
小学校・スーパー至近で生活しやすい住環境♪天気を気にせず洗濯物が干せる便利なインナーバルコニー♪耐震+制震の地震に強い安心の住まい◎【2号棟】
2,880

藤沢市 辻堂 東海岸1丁目新築戸建
◇開放感ある吹き抜けのある2階リビングです◇季節物の収納に便利な小屋裏収納がございます <No.2>
5,980

藤沢市 長後新築戸建
最寄り駅まで徒歩6分!WIC&SIC&パントリー付きのミラブルzero搭載物件です☆隣地との間隔が広く開放感◎バルコニーは2箇所あり!
4,940

平塚市 大島新築戸建
敷地面積50坪超のゆとりの5LDK!カースペース2台駐車可能(車種による)全居室収納に加え、パントリー&廊下収納付きですっきり整う住まい♪【4号棟】
3,480

平塚市 入野新築戸建
WIC3カ所完備の収納力豊富な4LDK!リビング上部は折り上げ天井で解放感◎2部屋から行き来できる広々バルコニー♪【2号棟】
3,380

平塚市 河内新築戸建
耐震+制震で、地震に強く安心して暮らせる住まい◎スーパー・コンビニ・小学校が近く家族に嬉しい住環境♪ SICや床下収納など収納スペース豊富!【3号棟】
2,680

茅ヶ崎市 本村4丁目新築戸建
約24帖のルーフバルコニーはBBQやプールなど多様な用途で楽しめるプライベート空間♪玄関は開放感ある吹き抜け☆ <1号棟>
5,990

藤沢市 葛原新築戸建
角地という開放的な立地が魅力☆全棟120㎡超えの広々とした敷地!全棟パントリー付き♪1号棟は雨でも安心なインナーバルコニー!
4,480

平塚市 入野新築戸建
住宅設備機器修理サービス対象物件!リビング脇には便利な多用途スキップフロア♪家事効率と明るさ・風通しを両立したキッチン◎【1号棟】
3,380