
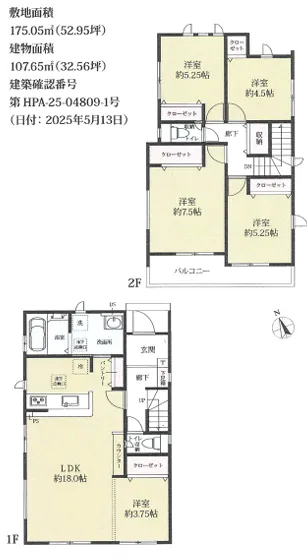
平塚市 大島新築戸建
敷地面積50坪超のゆとりの5LDK!カースペース2台駐車可能(車種による)全居室収納に加え、パントリー&廊下収納付きですっきり整う住まい♪【4号棟】
3,280

茅ヶ崎市 松が丘2丁目新築戸建
太陽の陽が降り注ぐルーフバルコニー付き!食洗機付のキッチン!コミュニケーションの取りやすい対面式です♪カースペース2台駐車可☆ <No.3>
5,590

藤沢市 羽鳥2丁目新築戸建
「辻堂」駅徒歩圏の4LDK!床暖房や食洗機など暮らしを彩る充実した設備♪SIC・WIC等の収納も完備し快適なライフスタイルを送れます☆
6,799

平塚市 田村5丁目新築戸建
車3台駐車可能!(車種による)コンビニや小・中学校が近く生活しやすい立地◎家族の会話が弾む対面式キッチン♪全居室収納付きで荷物が多くても安心!【2号棟】
2,980

鎌倉市 腰越5丁目新築戸建
江ノ島・湘南の海を望める好立地!24.7帖の広々としたLDK♪ハイグレード仕様の住設備&無垢材やタイルを施す高級感溢れる内外装☆
16,800

平塚市 徳延字古屋敷新築戸建
小学校やスーパーが近く、毎日の暮らしに便利な立地◎2か所のバルコニーで、日当たり良好・洗濯もスムーズ♪お昼寝やキッズスペースにもぴったりなリビング隣接の和室【2号棟】
3,490

茅ヶ崎市 東海岸北2丁目新築戸建
収納や趣味の部屋など多用途に使えるロフト完備!リビング上部は開放的な吹抜けです。コンビニ徒歩約3分、近くにあるのは心強いですね☆ <No.3>
5,980

藤沢市 長後新築戸建
◇開放感あふれる南西角地◇駐車スペース2台分を確保!11月完成予定です♪周辺環境、物件の日当たりなど、ぜひ現地をご見学くださいませ☆
3,790

平塚市 黒部丘新築戸建
LDKは床暖房完備で快適♪カースペース並列2台可能!前面道路幅約6mで出入りラクラク♪小・中学校が近くお子様の通学も安心◎【2号棟 】
5,149

平塚市 ふじみ野2丁目新築戸建
東南角地につき日当たり良好♪ファミリークローゼット・WIC完備で収納豊富◎LDKから回遊できるランドリー&収納動線で毎日の家事が快適に♪
3,880

鎌倉市 城廻新築戸建
大きなウッドデッキのある「和モダン住宅」パノラマ眺望のバルコニー、開放感ある吹き抜けのリビング、造作洗面台など見どころ満載の建物仕様☆カースペースは3台!
7,700

平塚市 徳延字古屋敷新築戸建
スーパー・コンビニ近く買い物に便利な立地♪小学校徒歩圏内で毎日の通学も安心◎2面バルコニーで洗濯もスムーズ!【3号棟】
3,490