
藤沢市 辻堂東海岸3丁目新築戸建
☆南西・北西角地につき開放感あり☆海まで徒歩10圏内!備蓄倉庫やWICを備えた豊富な収納力♪2面バルコニーや床暖房など生活に潤いをもたらす設備が◎
6,449

藤沢市 辻堂東海岸2丁目新築戸建
◇2面道路に面した開放感のある角地◇セカンドカーにうれしい駐車スペース2台分◎小学校・スーパー・ドラッグストアが徒歩圏☆ロフト付き!<1号棟>
6,280

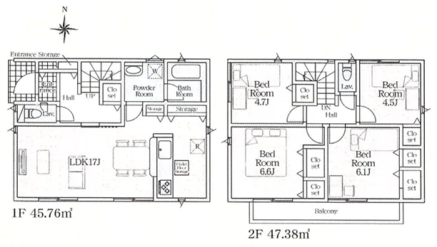
藤沢市 大庭新築戸建
寒い季節に足元ポカポカ床暖房付きのリビング♪洗面室隣にリネン庫を完備!タオルや洗剤の替え置き場に便利◎急な雨の時でも安心なインナーバルコニー☆
5,399

平塚市 寺田縄新築戸建
明るく解放感のある吹き抜け付リビング♪土間収納・WIC・床下収納など、収納スペース豊富◎3台分の駐車スペース完備!(車種による)
3,380

藤沢市 鵠沼 神明3丁目新築戸建
至近に大型商業施設が複数あり買い物環境が充実!「あったら嬉しい」が詰まった充実設備の新築戸建です♪ <No.7>
5,580

鎌倉市 今泉台7丁目新築戸建
閑静な住宅街!各居室収納+廊下収納がある住まいで収納上手な生活♪来客にも安心、駐車スペース3台可能☆
4,880

鎌倉市 手広新築戸建
日当たり良好な閑静な住宅地です!和室のある4LDK。主寝室はゆとりの約8.6帖、リモートワークに便利なカウンター付き☆ <1号棟>
6,280

茅ヶ崎市 旭が丘新築戸建
一人一部屋のプライベート空間が実現できる4LDK+1Sの間取り!快適な温度が持続する床暖房付リビング♪バルコニーは奥行きがあり洗濯物を干す動作もラクラクです☆ <3号棟>
6,699

藤沢市 石川新築戸建
ゆとりの敷地面積49坪超えで駐車3台可能!(車種による)お子様のリビング学習にも最適なスタディカウンターを設置☆嬉しいパントリー付き♪
5,099

藤沢市 打戻新築戸建
ご家族とのコミュニケーションがとりやすいリビングイン階段♪上部は吹抜で採光と開放感◎突然の雨でも安心なインナーバルコニーです!
4,990

平塚市 虹ケ浜5丁目新築戸建
湘南ライフを満喫できる海近のお住まい◎角地につき陽当たり・通風良好♪周辺には買い物施設が充実◎小・中学校が近くお子様の通学も安心【1号棟】
4,680

海老名市 門沢橋2丁目新築戸建
駅徒歩8分! 毎日の移動がスムーズ♪通学負担を軽減できる小学校近くの安心立地◎全居室にクローゼット付き! お部屋をすっきり使えます♪【1号棟】
3,380