物件詳細
物件名
ヴェレーナ湘南海岸
所在地神奈川県藤沢市辻堂西海岸3丁目
価格5,100万円
交通JR東海道本線 「辻堂駅」 徒歩22分 バス6分 「真砂通り」 停歩3分
物件種別中古マンション
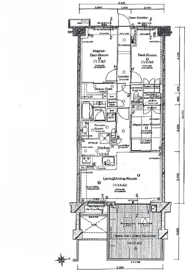
間取り3LDK
階数5階建
所在階1階
専有面積 80.32m2 (24.30坪)
駐車場有
構造鉄筋コンクリート
現況居住中
修繕積立金11,720円/月
管理費22,490円/月
管理方式全部委託
土地権利所有権
引き渡し時期相談
取引態様仲介
築年月2010年2月
学区浜見小学校
高浜中学校
高浜中学校
情報更新日2026年3月19日
備考インターネット定額料金:月額1.540円
ガーデン使用料:月額280円
ガーデン使用料:月額280円
設備・条件
キッチンカウンターキッチン
バス・トイレ浴室乾燥機
室内設備ウォークインクローゼット
建物設備駐輪場 / バイク置き場 / エレベーター / 専用庭 / 宅配ボックス / 日当たり良好
セキュリティ
入居条件
その他スーパー徒歩10分以内 / 小学校徒歩10分以内
こだわり条件
対面キッチン
浴室乾燥機
開放的なオープンエアリビングバルコニー付♪アスレチックジムやヒーリングスパなど共用部も充実◎
0120-58-6621
※電話でお問い合わせの際は、「物件番号: 10033831」をお伝えください。










