
平塚市 入野新築戸建
全居室収納完備+玄関には便利な土間収納付き◎南向きで日当たりの良いバルコニー♪リビング横にはキッズスペースや客間など多目的に使える和室◎【6号棟】
2,980

平塚市 入野新築戸建
勉強やワークスペースに最適なカウンター付きマルチスキップ♪WIC2箇所完備で収納力◎効率的な家事動線で採光や風通しの良いキッチン♪【4号棟】
3,280

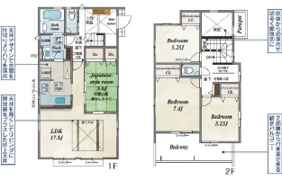
平塚市 入野新築戸建
安心の住宅設備機器修理サービス対象物件◎家族のくつろぎにぴったりなリビング横の畳スペース♪並列2台分のカースペース(車種による)で来客時も安心◎【3号棟】
3,280

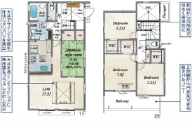
平塚市 入野新築戸建
WIC3カ所完備の収納力豊富な4LDK!リビング上部は折り上げ天井で解放感◎2部屋から行き来できる広々バルコニー♪【2号棟】
3,280

平塚市 入野新築戸建
住宅設備機器修理サービス対象物件!リビング脇には便利な多用途スキップフロア♪家事効率と明るさ・風通しを両立したキッチン◎【1号棟】
3,280