物件詳細
物件名
茅ヶ崎市松が丘2丁目1期 新築分譲住宅 全3棟 No.2
所在地神奈川県茅ヶ崎市松が丘2丁目
価格5,090万円
交通JR東海道本線 「茅ケ崎駅」 バス9分 「ひばりが丘」 停歩6分
JR相模線 「茅ケ崎駅」 バス9分 「ひばりが丘」 停歩6分
JR相模線 「茅ケ崎駅」 バス9分 「ひばりが丘」 停歩6分
物件種別新築戸建
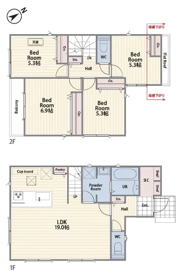
間取り4LDK
階数2階建
建物面積 99.98m2 (30.24坪)
駐車場有
土地面積 103.13m2 (31.20坪)
構造木造
現況完成済
設備 /
ライフライン公営水道 / 本下水 / 都市ガス
ライフライン公営水道 / 本下水 / 都市ガス
建蔽率60%
容積率150%
土地権利所有権
引き渡し時期相談
取引態様仲介
接道状況南東4m公道に11.39m面す
都市計画市街化区域
用途地域第一種低層住居専用地域
築年月2025年11月
地目宅地
建物確認番号第2025SBC-受確00977H号
学区浜須賀小学校
浜須賀中学校
浜須賀中学校
情報更新日2026年3月19日
備考準防火地域
設備・条件
キッチンカウンターキッチン / 食器洗浄機
バス・トイレ浴室乾燥機
室内設備シューズインクローク / パントリー / リビング階段
建物設備日当たり良好 / 南面バルコニー
その他整形地 / 平坦地 / 閑静な住宅街 / スーパー徒歩10分以内
こだわり条件
駐車2台以上
対面キッチン
パントリー付き
浴室乾燥機
顔を合わせるリビング階段、家族とゆったり過ごせる19帖の広々LDKです♪各居室収納+パントリー+シューズインクローク完備!豊富な収納も魅力的です☆ <No.2>
0120-58-6621
※電話でお問い合わせの際は、「物件番号: 10033058」をお伝えください。








