物件詳細
物件名
茅ヶ崎市今宿1期 新築分譲住宅 全4棟 No.4
所在地神奈川県茅ヶ崎市今宿
価格3,690万円
交通JR東海道本線 「茅ケ崎駅」 バス8分 「今宿」 停歩4分
JR相模線 「茅ケ崎駅」 バス8分 「今宿」 停歩4分
JR東海道本線 「平塚駅」 バス8分 「中島」 停歩4分
JR相模線 「茅ケ崎駅」 バス8分 「今宿」 停歩4分
JR東海道本線 「平塚駅」 バス8分 「中島」 停歩4分
物件種別新築戸建
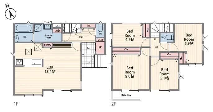
間取り4LDK
階数2階建
建物面積 97.91m2 (29.62坪)
駐車場有
土地面積 98.87m2 (29.91坪)
構造木造
現況未完成
設備 /
ライフライン公営水道 / 本下水 / LPG(個別)
ライフライン公営水道 / 本下水 / LPG(個別)
建蔽率60%
容積率200%
土地権利所有権
引き渡し時期相談
取引態様仲介
接道状況東4m公道に8.05m面す
都市計画市街化区域
用途地域第一種中高層住居専用地域
築年月2025年12月
地目宅地
建物確認番号第2025SBC-確00723H号
学区今宿小学校
萩園中学校
萩園中学校
情報更新日2026年3月19日
備考準防火地域、第2種高度地区
設備・条件
キッチンカウンターキッチン
バス・トイレ浴室乾燥機
室内設備シューズインクローク / パントリー
建物設備日当たり良好 / 南面バルコニー
その他整形地 / 閑静な住宅街 / 小学校徒歩10分以内
こだわり条件
駐車2台以上
対面キッチン
パントリー付き
浴室乾燥機
南側隣地通路につき日当たり良好です♪玄関をすっきり見せるシューズインクローゼット付き。太陽の陽が降り注ぐ南面バルコニー☆ <No.4>
0120-58-6621
※電話でお問い合わせの際は、「物件番号: 10034631」をお伝えください。








