物件詳細
物件名
藤沢市本藤沢2期 新築分譲住宅 全2棟 2号棟
所在地神奈川県藤沢市本藤沢
価格5,399万円
交通小田急江ノ島線 「藤沢本町駅」 徒歩15分
物件種別新築戸建
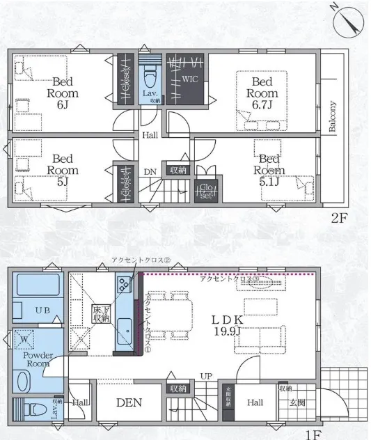
間取り4LDK+S
階数2階建
建物面積 100.20m2 (30.31坪)
駐車場有
土地面積 126.43m2 (38.25坪)
構造木造
現況未完成
設備 /
ライフライン公営水道 / 本下水 / 都市ガス
ライフライン公営水道 / 本下水 / 都市ガス
建蔽率50%
容積率80%
土地権利所有権
引き渡し時期相談
取引態様仲介
接道状況南西5.9m公道に2.7m面す
都市計画市街化区域
用途地域第一種低層住居専用地域
築年月2026年1月
地目宅地
建物確認番号第25UDI1W建05459号
学区本町小学校
第一中学校
第一中学校
情報更新日2026年2月2日
備考法第22条区域 下水道処理区域 宅地造成等工事規制区域
土地面積:路地状部分約31平米含
土地面積:路地状部分約31平米含
設備・条件
キッチンカウンターキッチン / 食器洗浄機
バス・トイレ浴室乾燥機
室内設備ウォークインクローゼット / リビング階段 / 納戸
建物設備日当たり良好
その他閑静な住宅街 / 周辺交通量少なめ / スーパー徒歩10分以内
こだわり条件
駐車2台以上
対面キッチン
浴室乾燥機
テレワークやお子様のリビング学習にも使える書斎DENをリビング一角に設置!キッチンはリビングと一体感を感じられる対面キッチン♪<2号棟>
0120-58-6621
※電話でお問い合わせの際は、「物件番号: 10034910」をお伝えください。



























